

-
Verfügbare Wohnungen18
-
Wohnungsgrössen zwischen54 - 76m²
-
Lage4712 Michaelnbach
-
BaubeginnSeptember 2025
Wohnen 4712 2.0 - Michaelnbach
WOHNEN 4712 2.0 - 18 neue Eigentumswohnungen in Michaelnbach
Wir errichten in einer ruhigen Siedlungslage im Zentrum von Michaelnbach zwei neue Mehrparteienhäuser zum angrenzenden, bereits gebauten ersten Bauteil, welche sich durch offene Grundrisse, helle Räume und großzügige Freiflächen auszeichnen.
Beide Gebäude bestehen jeweils aus 9 Eigentumswohnungen zwischen 54 und 76m² Wohnfläche aufgeteilt auf 4 Geschosse.
Von der gemütlichen Gartenwohnung über eine 3 Zimmerwohnung mit Balkon bis hin zur offen gestalteten Penthouse-Wohnung mit großer Dachterrasse – hier finden Sie Ihre neue Wohnung in Michaelnbach!
Zu jeder Einheit wird ein Autoabstellplatz gehören welcher im Kaufpreis enthalten ist, ergänzt durch weitere Stellplätze zum dazukaufen.
Die Wohnungen werden in Niedrigenergiebauweise errichtet und sind durch den Lift, vom Untergeschoss bis zum Dachgeschoss, barrierefrei erschlossen.
Im UG befinden sich die geräumigen Kellerabteile für jede Wohnung, sowie die allg. Bereiche wie ein Wasch- und Trockenraum, Fahrradabstellflächen oder die Technikräume.
Neuer, moderner Wohnraum in ruhiger, ländlicher Lage, kombiniert mit urbaner Nähe nach Grieskirchen/Wels – diese Kombination macht dieses Projekt und seinen Standort besonders interessant.
Gerne stehe ich Ihnen unter 0664/1322969 oder k.oberndorfer@haslehner.net für Fragen oder einen persönlichen Termin zu Verfügung.
Kerstin Oberndorfer
Haslehner Immobilien GmbH

Ihr Ansprechpartner:
18 verfügbare Wohnungen
Top | Etage | Grundriss | Terrasse / Balkon / Loggia |
Gartenfläche | Wohnfläche | Eigennutzer Kaufpreis |
Anleger KP zzgl. 20% Ust |
---|---|---|---|---|---|---|---|
1, H2 | UG |
![]() |
41,02 m2 | 19,69 m2 | 68,79 m2 | € 306.115,50 | € 263.892,67 |
1, H3 | UG |
![]() |
25,42 m2 | 22,24 m2 | 69,2 m2 | € 307.940,- | € 265.465,52 |
2, H2 | EG |
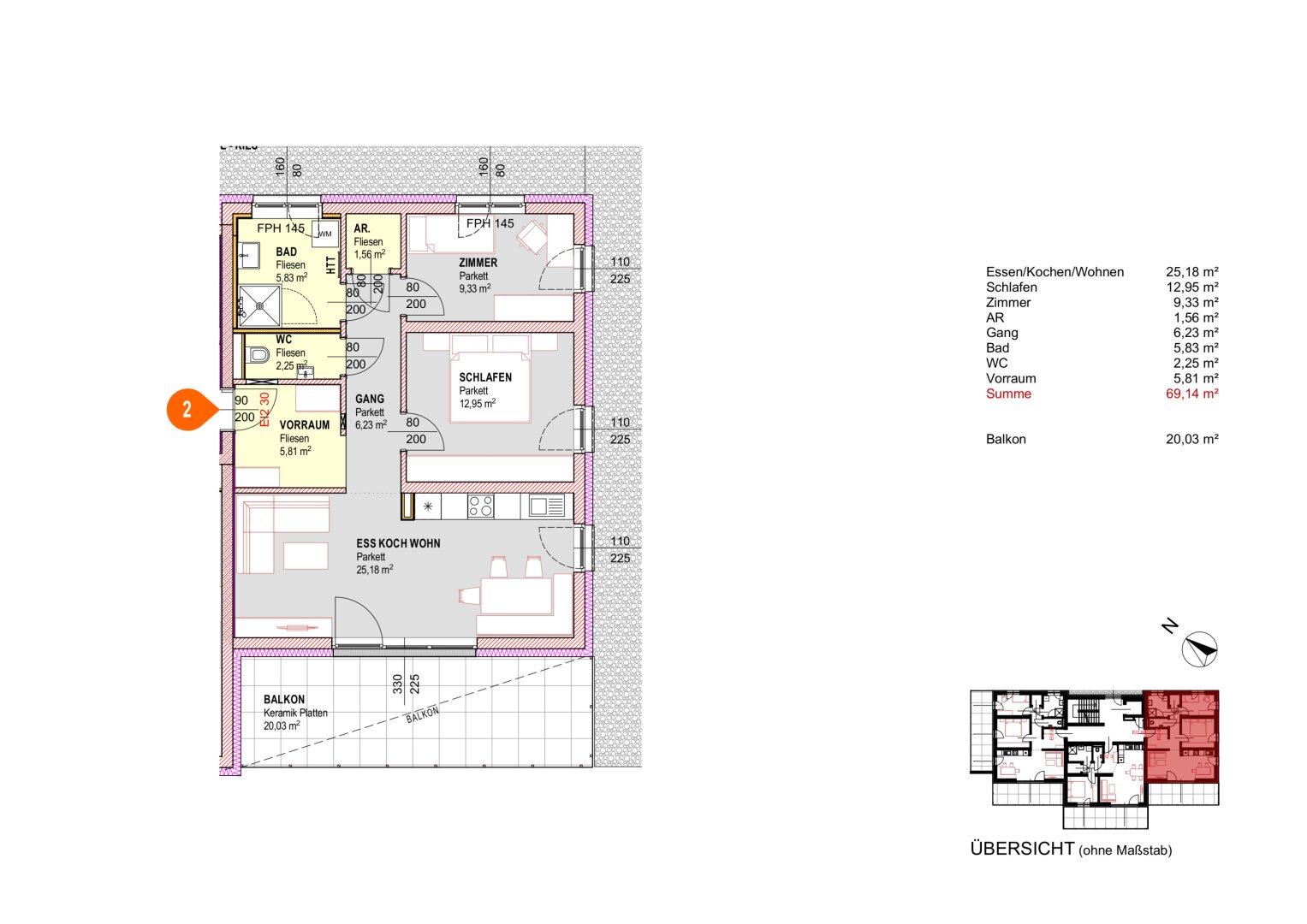
![]() |
20,03 m2 | 0 m2 | 69,14 m2 | € 295.227,80 | € 254.506,72 |
2, H3 | EG |
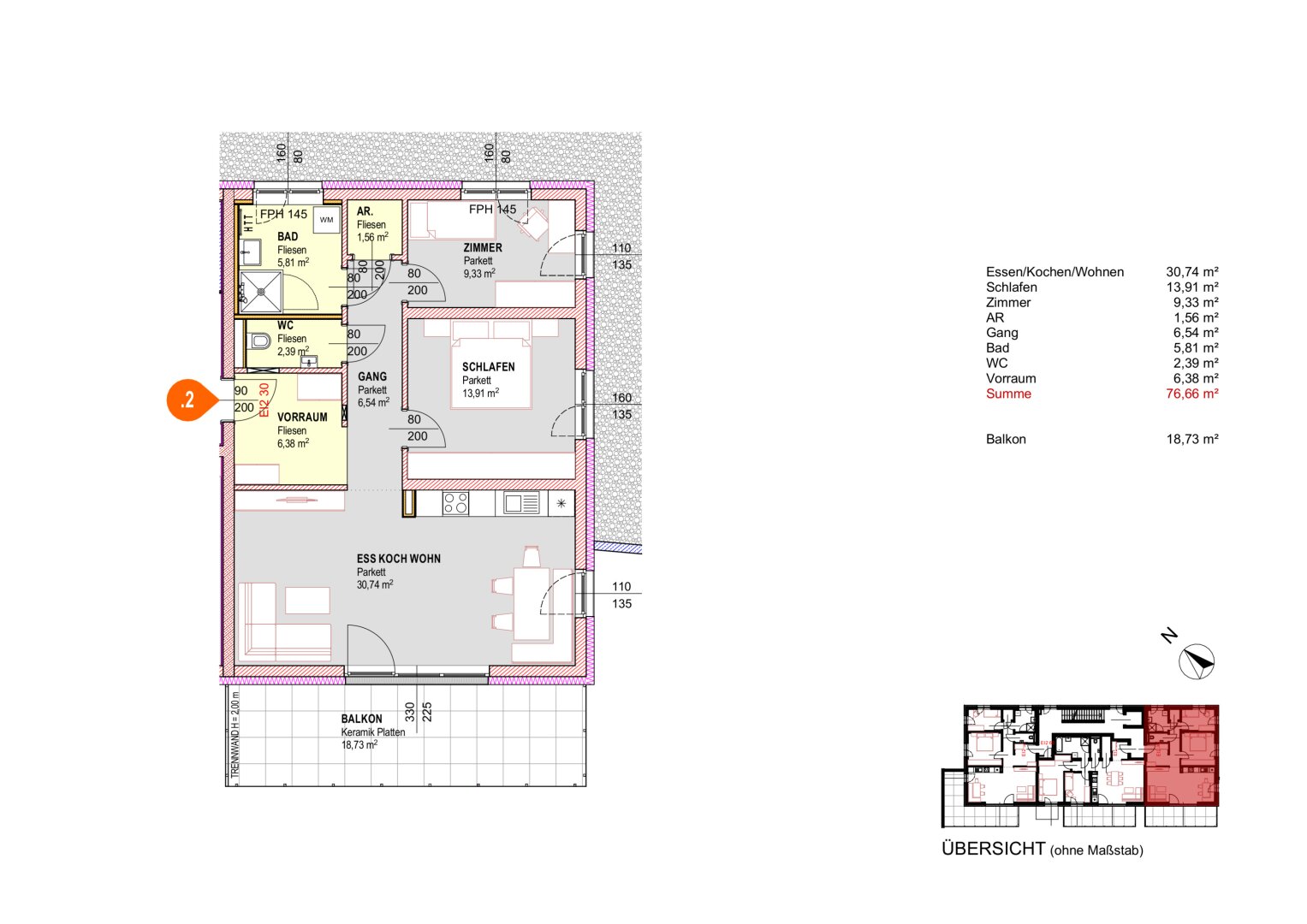
![]() |
18,73 m2 | 0 m2 | 76,66 m2 | € 329.638,- | € 284.170,69 |
3, H2 | EG |
![]() |
23,87 m2 | 0 m2 | 54,45 m2 | € 239.580,- | € 206.534,48 |
3, H3 | EG |
![]() |
18,73 m2 | 0 m2 | 73,5 m2 | € 316.050,- | € 272.456,90 |
4, H2 | EG |
![]() |
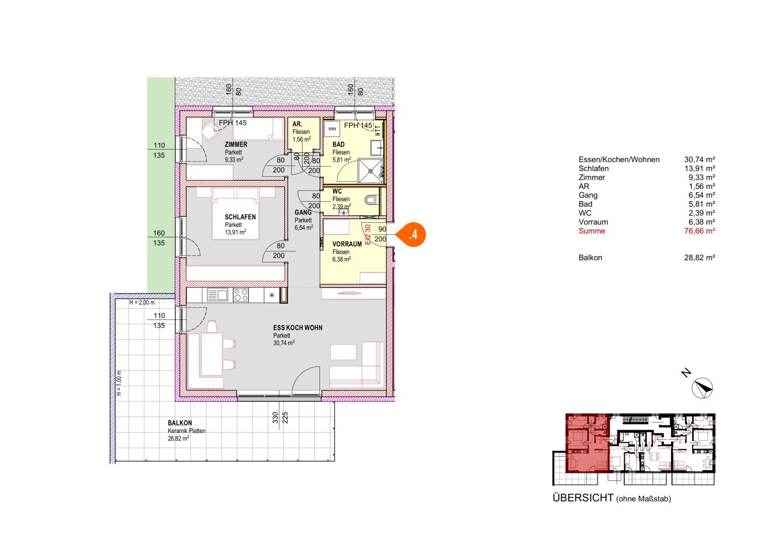
42,95 m2 | 0 m2 | 69,14 m2 | VERKAUFT | VERKAUFT |
4, H3 | EG |
![]() |
28,82 m2 | 0 m2 | 76,66 m2 | € 329.638,- | € 284.170,69 |
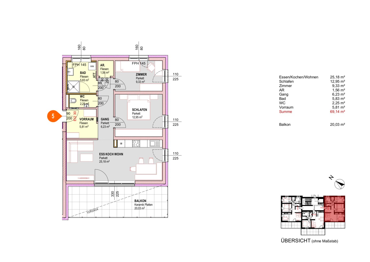
5, H2 | 1.OG |
![]() |
20,03 m2 | 0 m2 | 69,14 m2 | € 297.302,- | € 256.294,83 |
5, H3 | 1.OG |
![]() |
18,73 m2 | 0 m2 | 76,66 m2 | € 333.471,- | € 287.475,- |
6, H2 | 1.OG |
![]() |
23,87 m2 | 0 m2 | 54,4 m2 | € 239.360,- | € 206.344,83 |
6, H3 | 1.OG |
![]() |
18,73 m2 | 0 m2 | 73,5 m2 | € 316.050,- | € 272.456,90 |
7, H2 | 1.OG |
![]() |
20,03 m2 | 0 m2 | 69,14 m2 | € 297.302,- | € 256.294,83 |
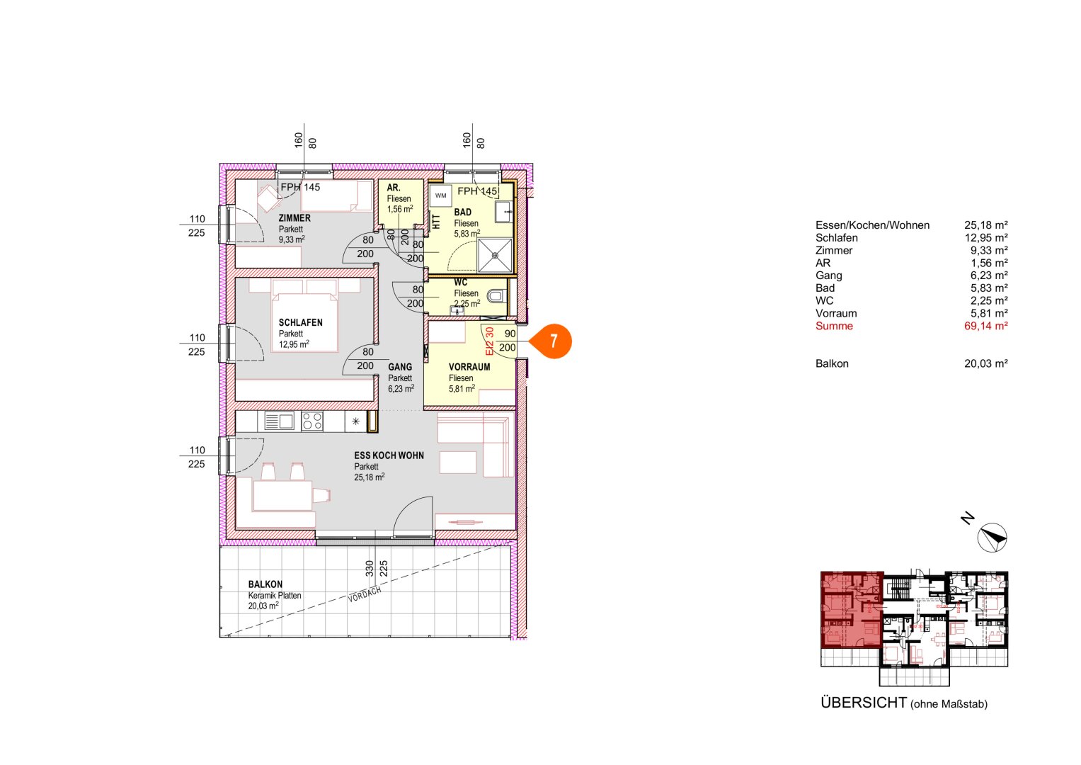
7, H3 | 1.OG |
![]() |
29,17 m2 | 0 m2 | 76,66 m2 | VERKAUFT | VERKAUFT |
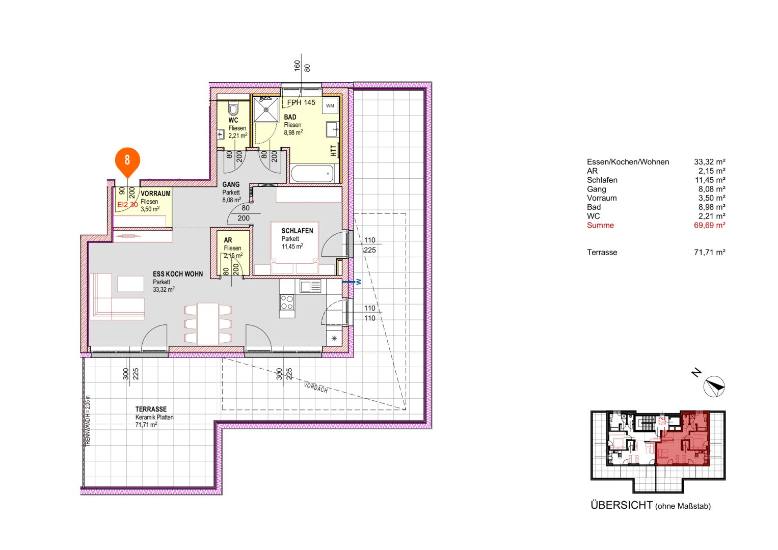
8, H2 | 2.OG |
![]() |
71,71 m2 | 0 m2 | 69,49 m2 | € 326.603,- | € 281.554,31 |
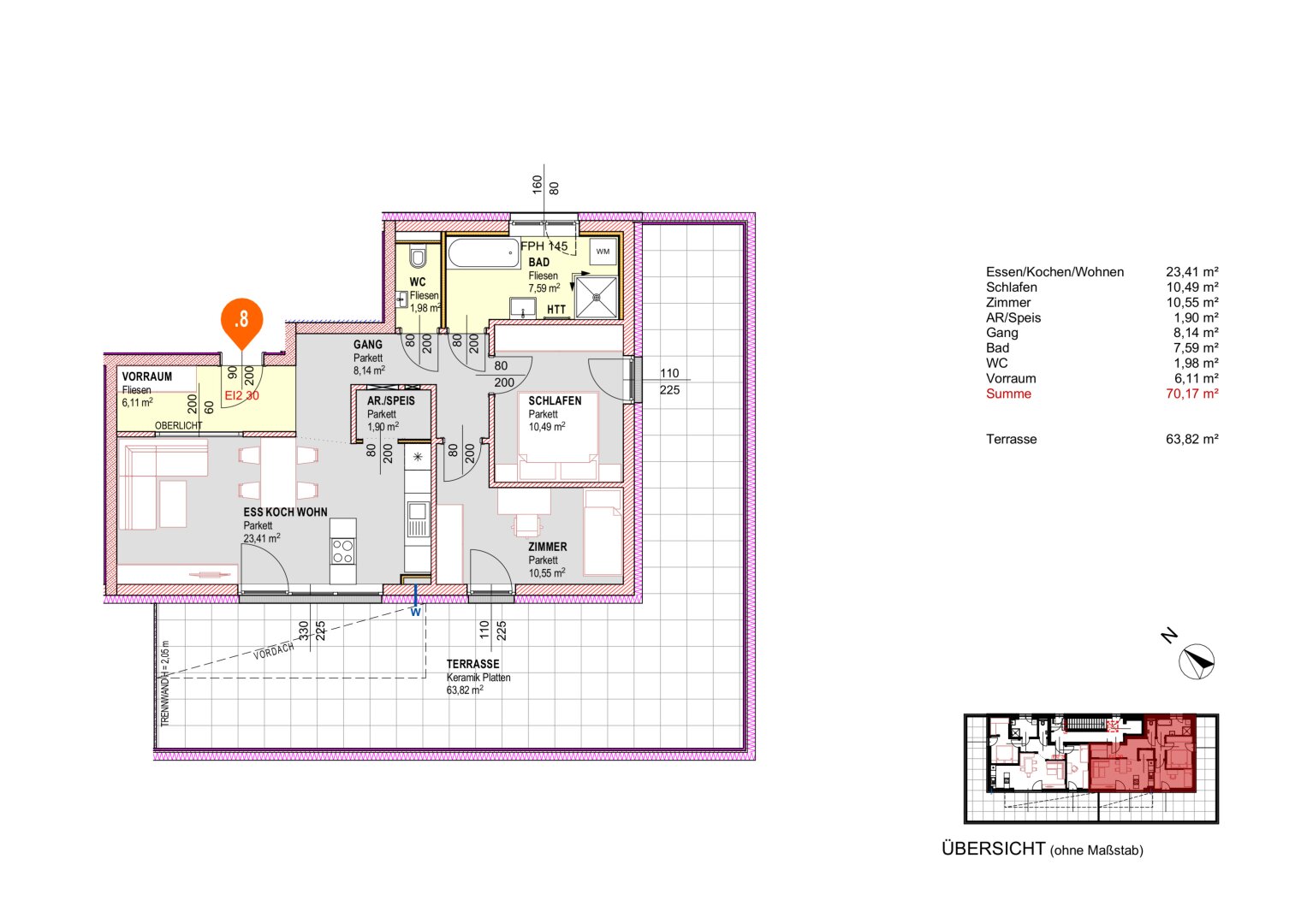
8, H3 | 2.OG |
![]() |
63,82 m2 | 0 m2 | 70,17 m2 | VERKAUFT | VERKAUFT |
9, H2 | 2.OG |
![]() |
67,31 m2 | 0 m2 | 68,66 m2 | € 322.702,- | € 278.191,38 |
9, H3 | 2.OG |
![]() |
69,2 m2 | 0 m2 | 71,12 m2 | VERKAUFT | VERKAUFT |